Продам будинок, район Рибхоз, вул.Луки Долинського  (№ 22-423-682)

Продам будинок, район Рибхоз, вул.Луки Долинського фото 1

Адреса: Київська, Білоцерківський, Біла Церква, Рибхоз, Лука Долинського

показати на карті

Тип: будинок

Поверхів: 1

Спалень: 3

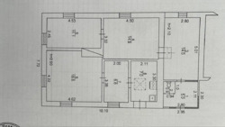
Площа будинку: 77 м2

Ділянка: 8 сот

Опалення: індивідуальне, газове+ пічне

Тип покрівлі:: шифер

Cанвузол: : сумісний

Комунікації: : Електрика, Вивіз відходів, Газ, Каналізація септик, Свердловина;

Ціна: 59 500 $

Контакти: +380965566390
+380673263063
0674700025
neruhomist_i@ukr.net
neruhomist_i@ukr.net

Будинок на 2 входи з екологічних матеріалів під власний ремонт по вул. Івана Кожедуба! Загальна площа: 77,3 м? Житлова площа: 44,5 м? Будинок на два входи 4 житлові кімнати + 2 кухні Газове + пічне опалення Вода в будинку (свердловина 24 м), бойлер Зручності в будинку Є підвал – для зберігання Каналізація – вигрібна яма Приватизована земельна ділянка 8,52 соток На території: Вольєр для собаки Майстерня Свердловина Є можливість зробити заїзд з іншої сторони ділянки. Можливе під організацію комерційної діяльності. Біля будинку зупинка громадського транспорту. Повний пакет документів, 1 власник. торг Власник.
Відстань до найближчого міста: У місті;
Кількість кімнат: 4;
Тип будинку: Будинок;
Рік побудови u002F здачі: 1960 - 1979;
Тип стін: Інше;
Тип покрівлі: Шифер;
Опалення: Комбіноване;
Ремонт: Житловий стан;
Меблювання: Ні;
Мультимедіа: Кабельне, цифрове ТБ, Wi-Fi;
Комунікації: Асфальтована дорога, Електрика, Вивіз відходів, Газ, Каналізація септик, Свердловина;


Замовити зворотній дзвінок